儋州望海国际广场(简称“儋州望海”)项目位于儋州市城北新区,国盛路与广场西路交界处,东面紧临主8万平方米的市政休闲广场——文化广场,西接另一商业地产项目名都天街(水岸名都3期),北临儋州城北新区主干道国盛路,南接恒大名都2期。
儋州望海国际广场项目占地9.7万㎡,总建筑面积为22万㎡,是集星级酒店、数字化智能写字楼、高档商场、尚品住宅、商业步行街于一体的城市综合体。

项目不仅满足了儋州目前中高端商业的需求,同时提升了儋州城市的整体形象。项目中儋州迎宾馆的建成,标志着儋州拥有了一个五星级酒店,不论是政府接待还是商务谈判,它都是一个很好的选择。

项目中的望海购物广场也填补了儋州中高端商业的空白,并携手大型超市、国内外知名品牌入驻儋州,缔造一个集餐饮、购物、影视、休闲娱乐等为一体的商业综合体。写字楼的建成,同样填补了儋州市区商业写字楼的空白,为更多企业入驻儋州市场提供优良的经营办公场所。

儋州望海国际广场住宅占地约4.5万平方米,总建筑面积约13.4万平方米,建有8栋18层的高档电梯住宅,住宅容积率为2.5,建筑密度23%,绿地率30%,住宅总户数为943户,商铺63户。
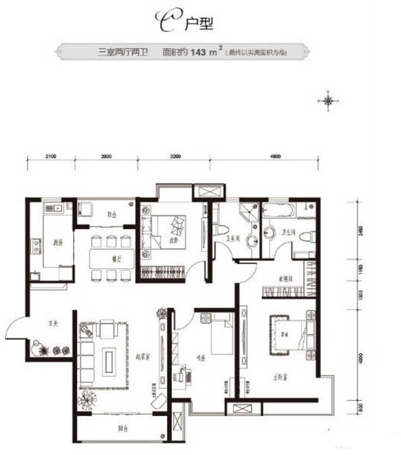
儋州望海国际广场住宅项目户型为板式结构,采光通风俱佳,分别有二梯四户、二梯三户和二梯二户。户型有7种选择,58平方米的一房二厅(1种户型), 85-102平方米的二房二厅室(2种户型)、115-144平方米的三房二厅(3种户型)、163平方米的四房二厅(1种户型)。